Charles Street, Anstruther

Guide price

£320,000
For Sale

Type

Residential Land

Availability

For Sale

Guide price

£320,000

Bedrooms

Bathrooms

Reception Rooms

Enquire Now

Request more information, including a copy of the legal pack.

Property Details

Property Summary

This property is being sold by public auction. Pre auction offers will be considered. Please contact Auction House Scotland for further information.

Full Details

Commercial to residential development opportunity


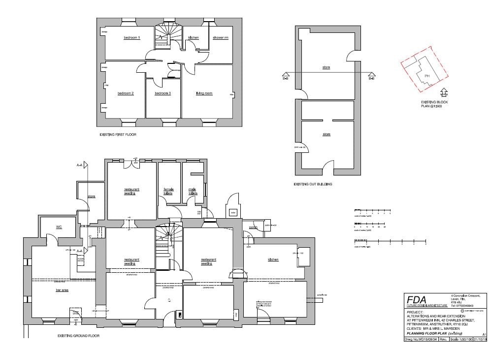
New to auction is this exciting commercial to residential development in the historic conservation village of Pittenweem in the sought after East Neuk of Fife. Formerly The Pittenweem Inn, this impressive category B Listed building is over two levels, and the listing also includes a detached outbuilding and sizeable plot to the side, previously used as patrons’ car park. Planning has been approved under Fife Planning Reference 19/03107/FULL for conversion of the substantial main building and out-building into four, two bed and one, one bed apartments. Alternative conversion options, for example as a single dwelling, may be possible subject to any required planning consents. Listed Building Consent has been granted under Fife Planning Reference 19/03105/LBC. The former car park to the side of the main building also offers potential as a single building plot subject to additional planning approvals. The fantastic added value potential, allied with the competitively positioned Guide Price, makes this project ideal for a builder/developer to pursue either of the development outcomes, whether for resale, holiday rental, to create a fabulous family home, or a combination of several of those options. Early viewing is essential to fully appreciate the outstanding value and potential on offer. Council Tax Band: B. 






Area


Enjoying picturesque setting in the East Neuk of Fife, Pittenweem has existed as a fishing village since early medieval times. The villages of Pittenweem, along with the neighbouring Anstruther and Crail, offer a variety of retail and leisure options, as well as both primary and secondary schooling. Pittenweem is a magnet for outdoor enthusiasts looking to explore the scenic Fife coast, and the Home of Golf at St Andrews is within a twenty minute drive. The village also hosts the popular Pittenweem annuals arts festival which draws further tourism to the village.

Special Notes to Purchaser

PURCHASERS NOTES


Please note that these particulars have been prepared by us on the basis of information provided by our client. If there is any aspect of these particulars that you wish clarified or that you find misleading please contact the office where further information will be made available.


• No tests have been made of services, equipment or fittings.


• No warranty is given or implied as to the condition of buildings, services, fixtures, fittings etc.


• All measurements, distances and acres are approximate.


• Fixtures, fittings and other items are not included unless specified in these details.


This material is protected by the laws of copyright. The owner of the copyright is Auction House Scotland. The property sheet forms part of our database and is protected by the database rights and copyright laws. No unauthorised copying or distribution without permission.


Auction House Scotland is revolutionising the sale of property in Scotland.


Remember, if you are buying a property which is being sold by Auction House Scotland you will normally be responsible for payment of a Buyer's Premium or Auction Fee of 3.6% of the purchase price subject to a minimum of £3600 inclusive of VAT. More details can be obtained on application.


Auction House Scotland are registered with HMRC and carry out due diligence on all of our clients, please ask for more information on identification required prior to entering into a contract.


Cybercrime Warning


Please be aware that there is a significant risk posed by cyber fraud, specifically affecting email accounts and bank account details. PLEASE NOTE THAT OUR BANK ACCOUNT DETAILS WILL NOT CHANGE DURING THE COURSE OF A TRANSACTION AND WE WILL NOT CHANGE OUR BANK DETAILS VIA EMAIL. Please be careful to check account details with us in person if in any doubt. We will not accept responsibility if you transfer money into an incorrect account.


Property Features

  • Exciting commercial to residential conversion project
  • Fantastic added value potential
  • Planning and Listed Building approvals in place
  • Single and multiple dwelling options
  • Additional plot for potential development
  • Visit the Auction House Scotland website to download the Legal Pack

Full Details

Commercial to residential development opportunity


New to auction is this exciting commercial to residential development in the historic conservation village of Pittenweem in the sought after East Neuk of Fife. Formerly The Pittenweem Inn, this impressive category B Listed building is over two levels, and the listing also includes a detached outbuilding and sizeable plot to the side, previously used as patrons’ car park. Planning has been approved under Fife Planning Reference 19/03107/FULL for conversion of the substantial main building and out-building into four, two bed and one, one bed apartments. Alternative conversion options, for example as a single dwelling, may be possible subject to any required planning consents. Listed Building Consent has been granted under Fife Planning Reference 19/03105/LBC. The former car park to the side of the main building also offers potential as a single building plot subject to additional planning approvals. The fantastic added value potential, allied with the competitively positioned Guide Price, makes this project ideal for a builder/developer to pursue either of the development outcomes, whether for resale, holiday rental, to create a fabulous family home, or a combination of several of those options. Early viewing is essential to fully appreciate the outstanding value and potential on offer. Council Tax Band: B. 






Area


Enjoying picturesque setting in the East Neuk of Fife, Pittenweem has existed as a fishing village since early medieval times. The villages of Pittenweem, along with the neighbouring Anstruther and Crail, offer a variety of retail and leisure options, as well as both primary and secondary schooling. Pittenweem is a magnet for outdoor enthusiasts looking to explore the scenic Fife coast, and the Home of Golf at St Andrews is within a twenty minute drive. The village also hosts the popular Pittenweem annuals arts festival which draws further tourism to the village.

Special Notes to Purchaser

PURCHASERS NOTES


Please note that these particulars have been prepared by us on the basis of information provided by our client. If there is any aspect of these particulars that you wish clarified or that you find misleading please contact the office where further information will be made available.


• No tests have been made of services, equipment or fittings.


• No warranty is given or implied as to the condition of buildings, services, fixtures, fittings etc.


• All measurements, distances and acres are approximate.


• Fixtures, fittings and other items are not included unless specified in these details.


This material is protected by the laws of copyright. The owner of the copyright is Auction House Scotland. The property sheet forms part of our database and is protected by the database rights and copyright laws. No unauthorised copying or distribution without permission.


Auction House Scotland is revolutionising the sale of property in Scotland.


Remember, if you are buying a property which is being sold by Auction House Scotland you will normally be responsible for payment of a Buyer's Premium or Auction Fee of 3.6% of the purchase price subject to a minimum of £3600 inclusive of VAT. More details can be obtained on application.


Auction House Scotland are registered with HMRC and carry out due diligence on all of our clients, please ask for more information on identification required prior to entering into a contract.


Cybercrime Warning


Please be aware that there is a significant risk posed by cyber fraud, specifically affecting email accounts and bank account details. PLEASE NOTE THAT OUR BANK ACCOUNT DETAILS WILL NOT CHANGE DURING THE COURSE OF A TRANSACTION AND WE WILL NOT CHANGE OUR BANK DETAILS VIA EMAIL. Please be careful to check account details with us in person if in any doubt. We will not accept responsibility if you transfer money into an incorrect account.


Share this listing

Share on facebook
Share on twitter
Share on linkedin
Share on whatsapp
Share on email

Useful Links

Guide to Buying at Auction

Guide to Buying at Auction

Read More

Buyers FAQs

Buyers FAQs

Read More

Terms & Conditions

Terms & Conditions

Read More

Auction Finance

Auction Finance

Read More

Newest Listings

  • Inverurie

    £325,000
    This property is being sold by public auction. Pre auction offers will be considered. Please contact Auction House Scotland for further information.
  • Links Terrace, Peterhead

    £325,000
    This property is being sold by public auction. Pre auction offers will be considered. Please contact Auction House Scotland for further information.
  • Charles Street, Anstruther

    £320,000
    This property is being sold by public auction. Pre auction offers will be considered. Please contact Auction House Scotland for further information.
  • Randolph Place, Wick

    £295,000
    This property is being sold by public auction. Pre auction offers will be considered. Please contact Auction House Scotland for further information.

Thinking of selling?


Book a free, no obligation property valuation today